Informacje ogólne
Pokoje
2
Łazienka
1
Sypialnie
1
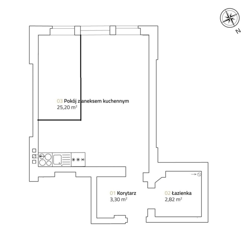
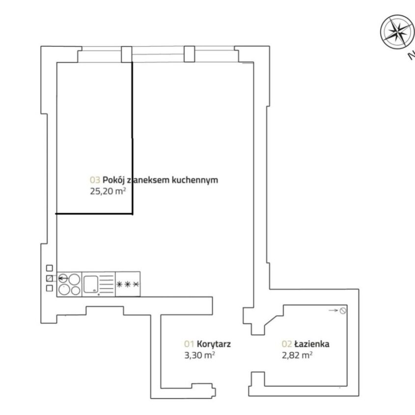
Metraż
32m2
Typ nieruchomości
Mieszkanie
Opis nieruchomości
Dwa pokoje w centrum Bydgoszczy!
Topowa lokalizacja, tuż przy ulicy Gdańskiej co czyni z tej nieruchomości doskonały punkt wypadowy w każdą stronę miasta. Nowocześnie urządzone mieszkanie, trafi w gusta najbardziej wymagających lokatorów.
Mieszkanie znajduje się przy ulicy Chodkiewicza 5.
Kompaktowe i praktyczne 32m2 powierzchni, sprawia, że jest to komfortowe mieszkanie zarówno dla singla oraz pary.
Wygodny salon z aneksem kuchennym + osobna sypialna.
Pełne wyposażenie [pralka, lodówka, płyta gazowa, prysznic, TV, szafy, łóżko, rozkładana kanapa]
W mieszkaniu zastosowane ogrzewanie podłogowe, jest ono bardzo ciepłe oraz ciche.
Informacje szczegółowe
ID 1040
Sypialnie 1
Cena 2,300 ZŁ
Metraż 32m2
Rodzaj Mieszkanie
Pokoje 2
Status Na Wynajem
Łazienka 1
Formularz kontaktowy
Nowe nieruchomości
Pozostałe nieruchomości
Zapoznaj się z różnymi ofertami nieruchomości, aby wybrać najlepszą opcję dla siebie.